旋振篩
概述
旋振篩是一種高精度細粉篩分機械,其噪音低、效率高,快速換網需3-5分鐘,全封閉結構,適用于粒、粉、粘液等物料的篩分過濾。旋振篩由底座上的普通電機通過橡膠聯軸器帶動激振器轉動,使篩機產生水平運動和繞水平軸搖擺振動的空間復合運動。篩中料層受剪切,并上下翻該,細顆料迅速接觸篩面,過孔分級。
特點
旋振篩是由直立式電機作激振源,電機上、下兩端安裝有偏心重錘,將電機的旋轉運動轉變為水平、垂直、傾斜的三次元運動,再把這個運動傳遞給篩面。調節上、下兩端的相位角,可以改變物料在篩面上的運動軌跡。 旋振篩具有結構簡單、功耗少、噪音小、篩分效率高等特點,可滿足多級篩分的工藝要求,旋振篩物料運動軌跡和振動力大小可進行調整。篩網有撞擊裝置,不易堵寨,張緊容易,調換方便,使用壽命長,排出方向可隨意改變,動載荷對安裝對基礎傳遞小,安裝調試簡單方便。

旋振篩的特點表現:
1、體積小、重量輕、移動方便、出料口方向可任意調整,粗、細料自動排出,可自動化或人工作業。
2、篩分精度高、效率高,任何粉、粒、粘液類均可使用。
3、篩網不阻塞、粉末不飛揚、篩分最細可達500目(28微米)過濾最細可達5微米。
4、獨特網架設計(子母式)、篩網使用長久、換網方便、操作簡單、清洗方便。
5、無機械動作、保養簡易、可單層或多層使用。
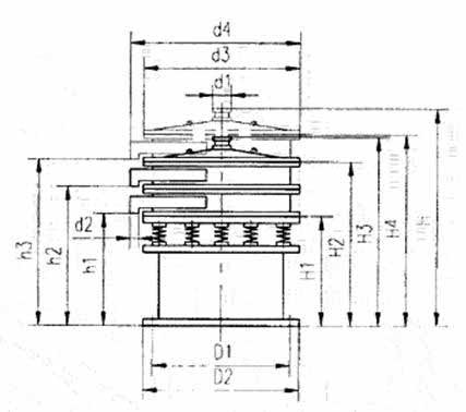
參數
|
型 號 |
篩網直徑(mm) |
處理量 (T/h) |
振動頻率 (min-1) |
電機功率 (kw) |
重量 (kg) |
備 注 |
|
GD—1500 |
¢1500 |
9—14 |
930 |
2.2 |
759 |
處理量按標準物料河砂計算(1.67/m3)選型時按處理物料比重換算 |
|
GD—1000 |
¢1000 |
4—6 |
930 |
1.I |
500 |
|
|
GD—800 |
¢800 |
2—4 |
930 |
0.75 |
40 |
|
|
GD—600 |
¢600 |
1.5—2 |
1450 |
0.75 |
300 |
|
|
GD—400 |
¢400 |
1—1.5 |
1450 |
0.25 |
160 |
外形尺寸:
|
型 號 |
d 1 |
d2 |
d3 |
d4 |
DI |
D2 |
h1 |
h2 |
h3 |
H1 |
H2 |
H3 |
H4 |
H |
有效面積(m2) |
|
GD—1500 |
280 |
200 |
1650 |
2280 |
142 |
1450 |
640 |
830 |
1020 |
660t |
1040 |
1300 |
1230 |
1490 |
1.77 |
|
OD—1000 |
220 |
140 |
1120 |
1520 |
975 |
1040 |
565 |
695 |
825 |
580 |
840 |
1040 |
970 |
1170 |
0.74 |
|
GD—800 |
200 |
130 |
850 |
1160 |
780 |
850 |
540 |
665 |
790 |
560 |
810 |
950 |
935 |
1075 |
0.44 |
|
GD—600 |
130 |
110 |
710 |
980 |
610 |
660 |
480 |
600t |
720 |
490 |
730 |
850 |
850 |
970 |
0.265 |
|
GD—400 |
120 |
100 |
470 |
700 |
400 |
445 |
435 |
525 |
615 |
440 |
620 |
700 |
700 |
780 |
0.1 |
用途
旋振篩用于干濕、粗細、輕重不同的各種物料的篩分作業,亦可用于固液分離、廢污水處理等,廣泛用于化工、冶金、建樹、陶瓷、造紙、醫藥、食品和飼料加工等各行各業的生產流水線及單獨作業。
相關產品
-
YA圓振動篩
YA圓振動篩篩機分單層和雙層,并有輕型和重型之分。篩網結構有編織闖、沖孔篩板。如果選用鐵簽式篩板可按要求設計。雙層篩上層篩面選定的篩孔尺寸超過技術性能及參數中規定的篩孔尺寸時,應按要求設計。
立即了解?YA圓振動篩
-
YKR圓振動篩
YKR系列圓振動篩和ZKR系列直線振動篩是在充分吸收德國同類產品優點的同時,總結我國多年研究、設計、生產和使用篩機的經驗,結合我國的國情同國內著名的篩分機械專家共同開發的新型系列振動篩,它廣泛應用于水電、煤炭、冶金、電力、礦山、建材、化工等領域。
立即了解?YKR圓振動篩
-
SZZ系列自定義中心振動篩
SZZ系列自定義中心振動篩運動軌跡為圓,篩機機構簡單,堅固可靠,維修方便,效率高,標準是采用的QJ/AKJ02.08-89。
立即了解?SZZ系列自定義中心振動篩
-
DYK(S)系列大型圓振動篩
DYK系列大型圓振動篩-種篩分機械,廣泛適用于冶金、礦山、交通、電力、建材、化工、特別是煤炭等部門,對各種物料進行分級。
立即了解?DYK(S)系列大型圓振動篩
-
三元超聲波圓振篩
三元超聲波圓振篩是將220V、50Hz或110V、60Hz電能轉化為18KHz的高頻電能,輸入超聲換能器,將其變成18KHz機械振動,從而達到高效篩分和清網的目的,使超微細粉篩分成為易事。。
立即了解?三元超聲波圓振篩
-
圓振篩
動態
-
14
2018-07
關于圓振動篩的使用與維護要點
圓振動篩是一種經典、通用且已標準化的篩分設備。該系列篩分機箱運動軌跡為圓,根據用途有輕型和重型之分,篩機篩面有單層和雙層兩種結構形式,可應用于選礦、建材、電力、輕工和化工各行業對各種顆粒狀和小塊狀散固體物料的干式分級。
-
13
2016-05
看完這些,再不用擔心把圓振動篩分機安裝錯了!
YKR系列圓振動篩分機是永恒振動機械公司根據用戶需要,吸取國內處先進技術研制開發的產品, 我們的產品質量可靠,型號多樣,用途廣泛,售后服務周到,市場好評不斷,熱忱歡迎新老客戶光臨選購。
-
29
2015-04
2015年4月28日這一臺YA2160圓振動篩檢驗試機合格,即將發往用戶的使用現場
圓振動篩出廠前試機請特別注意加油和日常檢查,力量雄厚,體格強壯的他會給您源源不斷地創造財富哦!1、運抵現場后,首次開機四小時應重新加油一次。激振器軸承潤滑,選用的長城牌津脂HP-R潤滑脂,不得與其他品種混用,更換新品種油脂時應將原有油脂清洗干凈。 2、每半個..
-
30
2014-06
多層直線振動篩是礦業生產中不可缺少的設備
多層直線振動篩是由篩箱和振動器,支撐彈簧、隔振架、二次隔振彈簧加上電動機及支架等構成。旋振篩具有物料運行的軌跡長,篩面利用率高等優點,調節上、下兩端重錘的相位角,可改變物料在篩面上的運動軌跡
-
12
2012-03
重慶材料電石項目單層圓振動篩采購預告
重慶材料電石項目單層圓振動篩采購預告 物料名稱:其他通用設備及其配件類 2012-3-14 截止日期:2012-3-28 重慶材料電石項目單層圓振動篩采購預告 計劃備案號 CCWZBA2012036 采購方式 詢價 采購項.. 旋振篩 垂直振動輸送機單層圓振動篩采購預告 物料名稱:其他通用設備及其..